- One Bedroom Retirement Flat
- Minimum Age 60
- New Kitchen
- Development Manager
- 24/7 Emergency Call System
- Lift to All Floors
- Communal Gardens
- Communal Lounge & Laundry
- Guest Facilities
Full Description
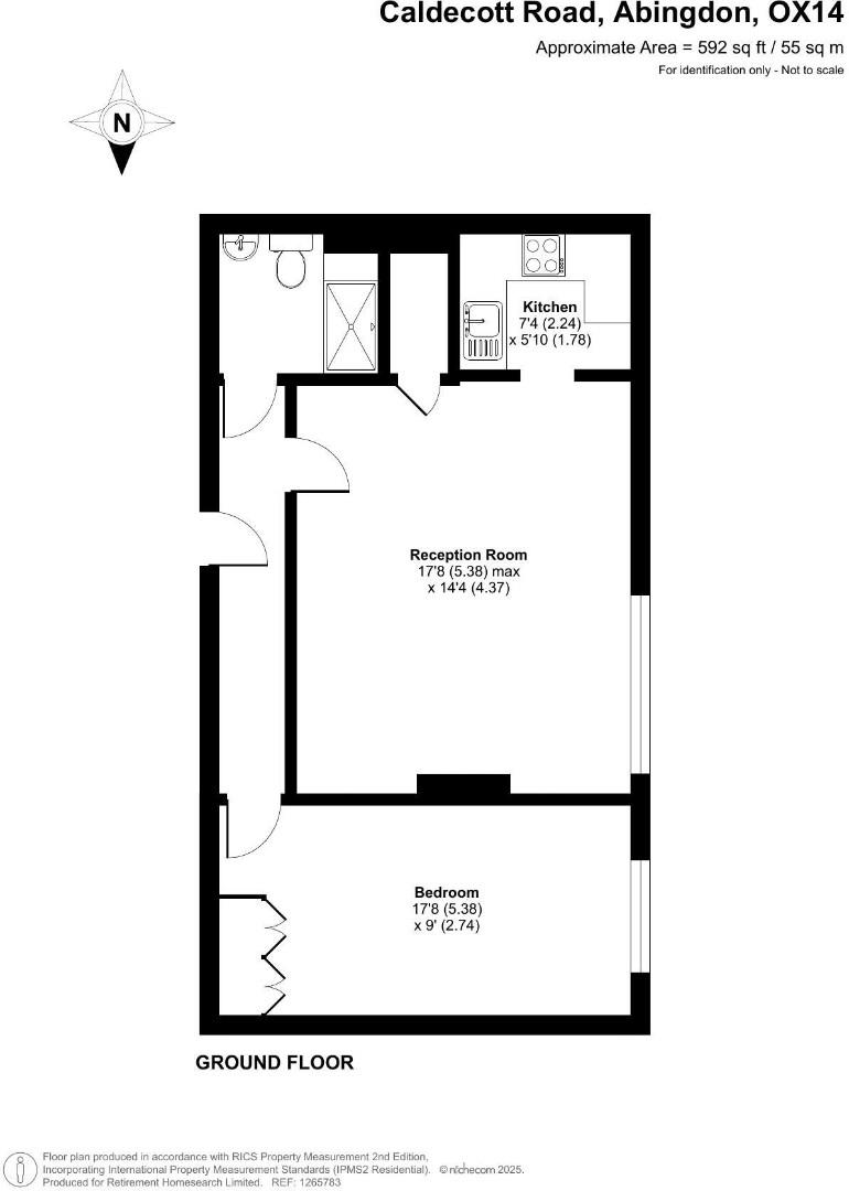
A ONE BEDROOM RETIREMENT APARTMENT LOCATED ON THE FIRST FLOOR. Cygnet Court was constructed by McCarthy & Stone (Developments) Ltd and comprises 52 properties arranged over 3 floors each served by lift and enjoys a cul-de-sac position adjacent to the River. The Development Manager can be contacted from various points within each property in the case of an emergency. For periods when the Development Manager is off duty there is a 24 hour emergency Appello call system. The property comprises an entrance hall, lounge, kitchen, bedroom and bathroom. New residents welcomed from the age of 60 years, or in the event of a couple, one must be over the age of 60 years and the other over 55 years.
Entrance Hall
With door entry phone and emergency intercom.
Living Room (5.38 x 4.37 (17'7" x 14'4"))
Wall light points, storage heater, power points, TV aerial point, emergency pull cord. Telephone point. Airing cupboard with insulated tank, electric meter.
Kitchen (2.24 x 1.78 (7'4" x 5'10"))
Tiled and fitted with stainless steel sink unit, wall and floor cupboards with work tops. Built in electric oven with four ring hob and hood over. Space for refrigerator. Power points, strip light, extractor fan.
Bedroom (5.38 x 2.74 (17'7" x 8'11"))
Built in wardrobe with hanging rail and shelf over. Storage heater. Wall light points, power points, emergency pull cord.
Shower Room
Tiled and fitted with suite comprising shower unit and hand grips. Emergency push button; WC with low level flush; vanity unit with mirror over. Strip light, extractor fan, wall mounted eater.
Viewing
Please contact us on 02039677960 if you wish to arrange a viewing appointment for this property, or require further information.
Energy Performance Certificate
Click here to view the Energy Efficiency Rating and Environmental Impact Rating for this property.
Disclaimer
UK Retirement rentals - TS1 endeavour to maintain accurate depictions of properties in Virtual Tours, Floor Plans and descriptions, however, these are intended only as a guide and purchasers must satisfy themselves by personal inspection.
Entrance Hall
With door entry phone and emergency intercom.
Living Room (5.38 x 4.37 (17'7" x 14'4"))
Wall light points, storage heater, power points, TV aerial point, emergency pull cord. Telephone point. Airing cupboard with insulated tank, electric meter.
Kitchen (2.24 x 1.78 (7'4" x 5'10"))
Tiled and fitted with stainless steel sink unit, wall and floor cupboards with work tops. Built in electric oven with four ring hob and hood over. Space for refrigerator. Power points, strip light, extractor fan.
Bedroom (5.38 x 2.74 (17'7" x 8'11"))
Built in wardrobe with hanging rail and shelf over. Storage heater. Wall light points, power points, emergency pull cord.
Shower Room
Tiled and fitted with suite comprising shower unit and hand grips. Emergency push button; WC with low level flush; vanity unit with mirror over. Strip light, extractor fan, wall mounted eater.
Viewing
Please contact us on 02039677960 if you wish to arrange a viewing appointment for this property, or require further information.
Energy Performance Certificate
Click here to view the Energy Efficiency Rating and Environmental Impact Rating for this property.
Disclaimer
UK Retirement rentals - TS1 endeavour to maintain accurate depictions of properties in Virtual Tours, Floor Plans and descriptions, however, these are intended only as a guide and purchasers must satisfy themselves by personal inspection.

